Elite Residence
Mesa Geitonia Municipality, Limassol
Introducing Elite Residence, an exclusive residential development located in the very heart of Limassol. This elegant three-floor building offers a rare combination of privacy, contemporary design, and prime urban accessibility, making it an exceptional choice for both homeowners and investors.
Perfectly positioned in the city center, Elite Residence places residents within immediate reach of Limassol’s main commercial streets, essential services, cafés, restaurants, shops, and everyday amenities. Its central location ensures effortless connectivity to every part of the city, while offering the convenience and vibrancy of modern urban living.
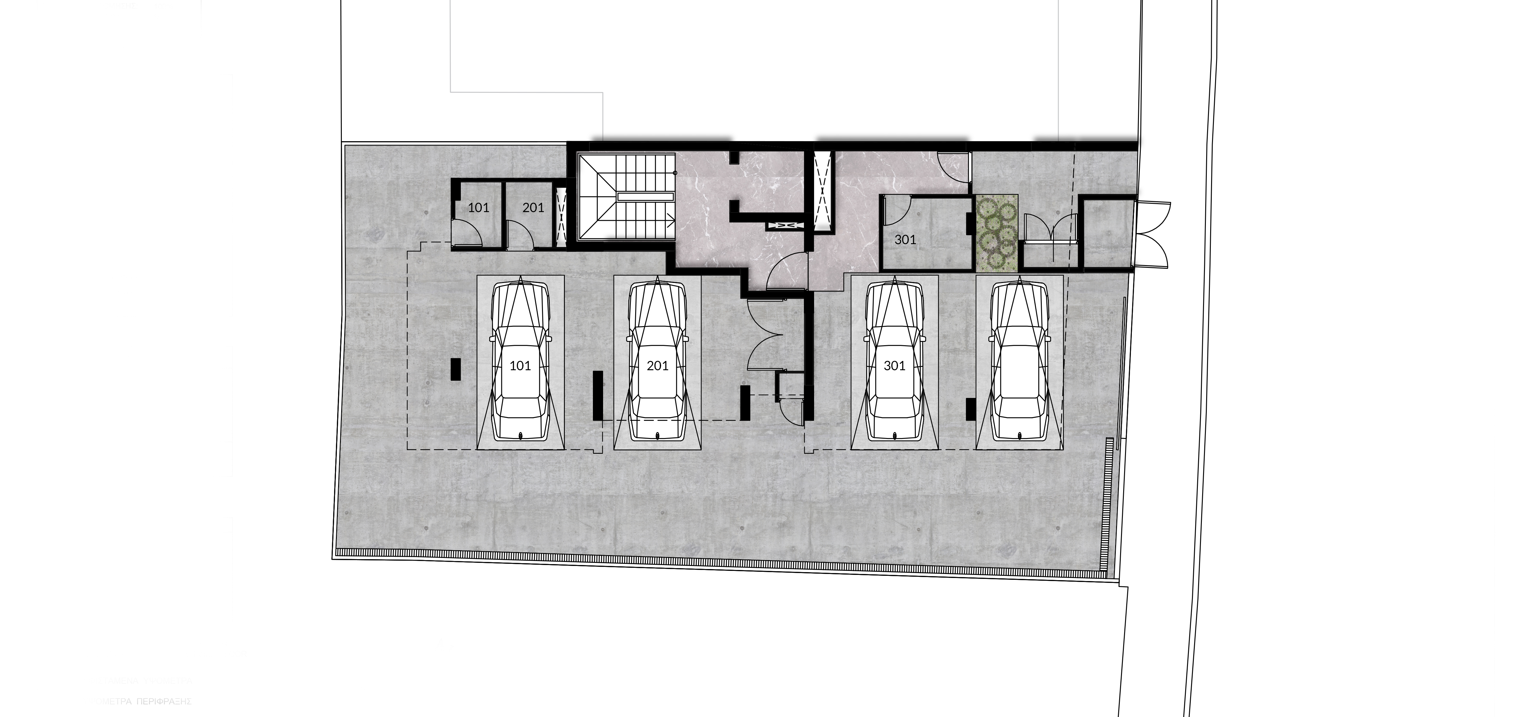
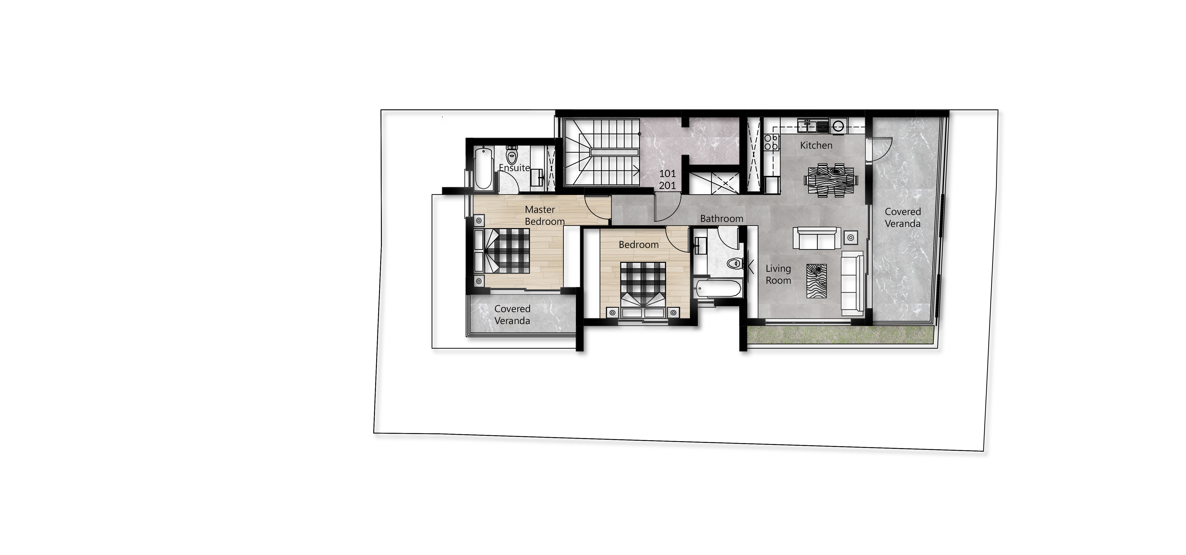
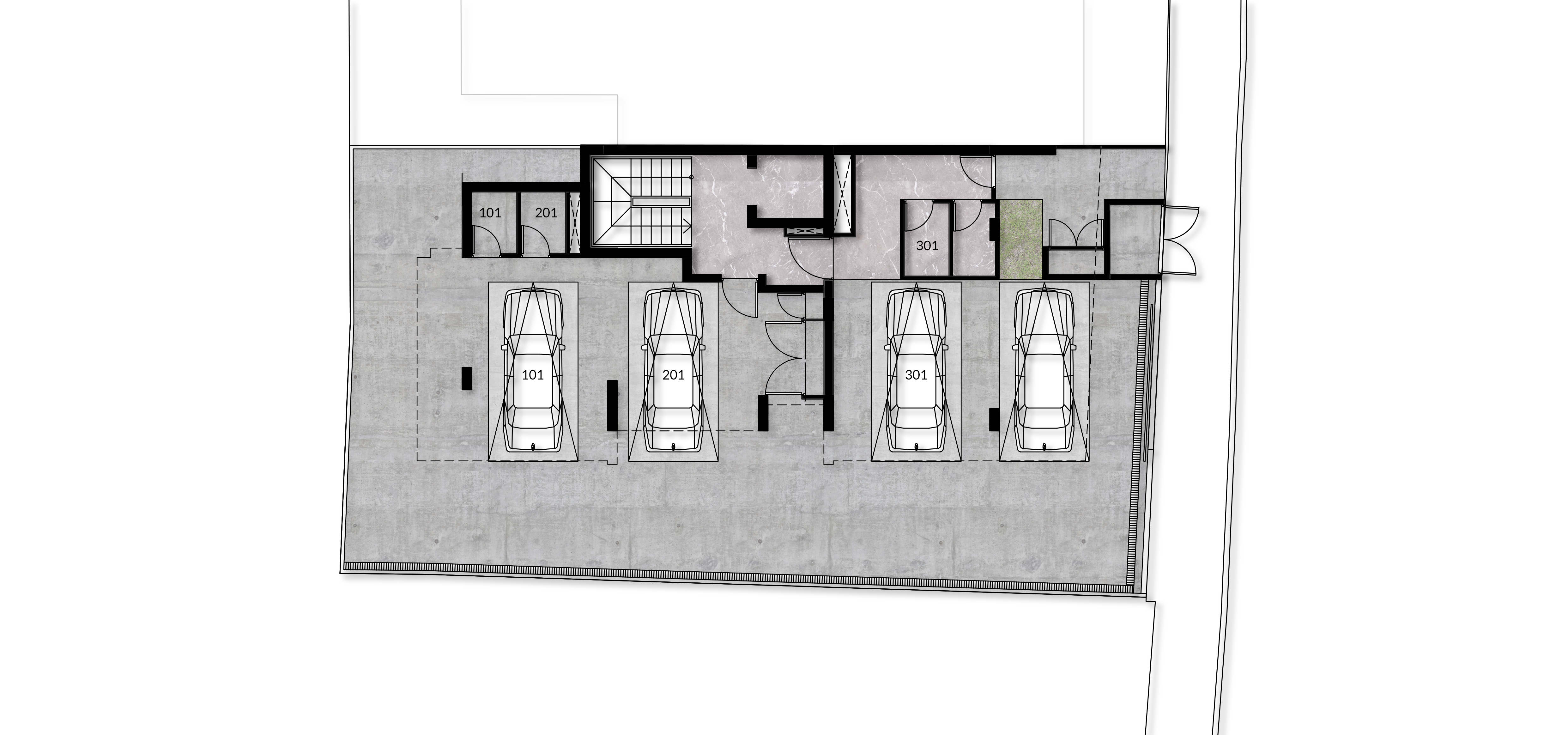
The development consists of three beautifully designed two-bedroom apartments, with one apartment on each floor, offering an ideal sense of exclusivity and comfort. Each residence has been thoughtfully planned to maximize functionality, natural light, and contemporary aesthetics, creating homes that are both stylish and practical.
One of the project’s most distinctive qualities is its private and low-density character. With only three apartments in total, Elite Residence offers residents a more peaceful and refined living environment, with an added sense of privacy and exclusivity. Spacious interiors and carefully considered layouts make each apartment perfectly suited to modern lifestyles.
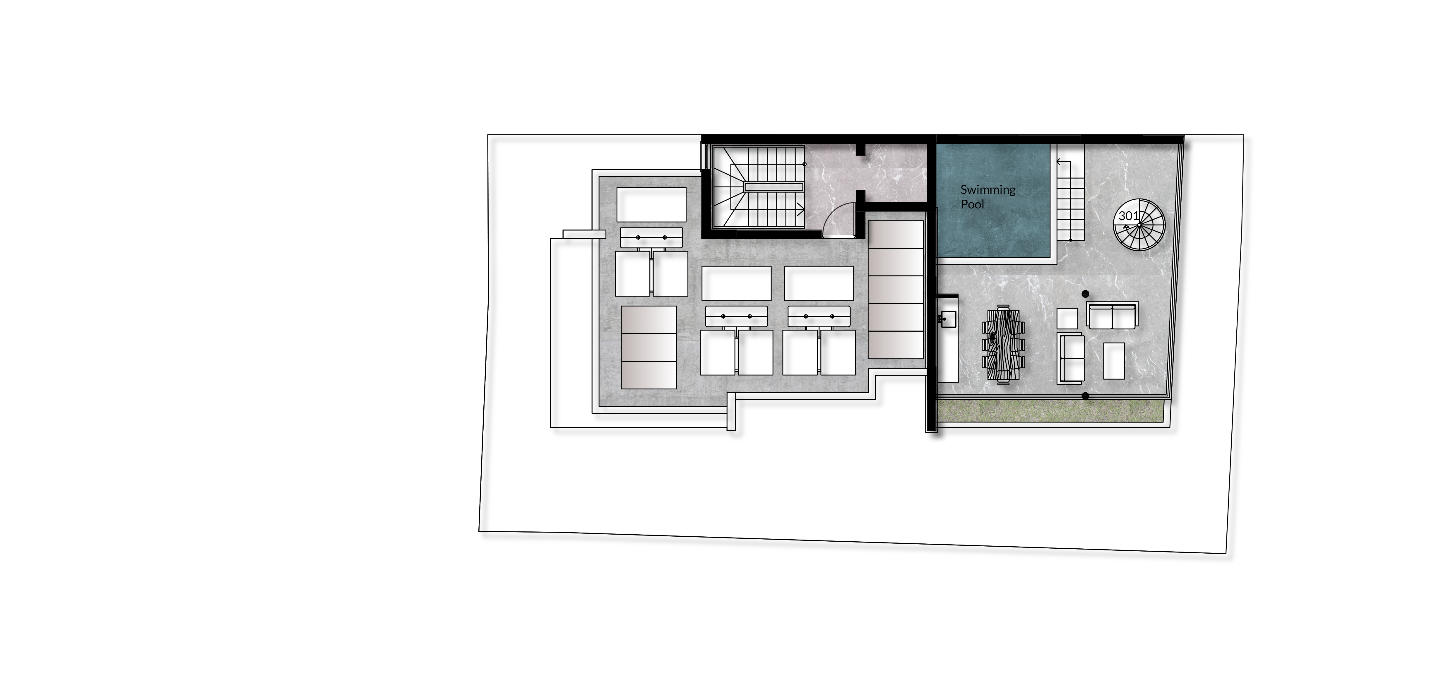
For those seeking an elevated sense of luxury, the third-floor apartment enjoys its own private roof garden and swimming pool, creating a unique retreat in the center of the city. This exceptional outdoor space provides the perfect setting for relaxation, entertaining, and enjoying the Mediterranean lifestyle in complete privacy.
Whether as a permanent residence or a high-potential investment opportunity, Elite Residence combines location, exclusivity, and modern comfort in one outstanding development. Elite Residence is where boutique living meets the energy of the city center.
Perfectly positioned in the city center, Elite Residence places residents within immediate reach of Limassol’s main commercial streets, essential services, cafés, restaurants, shops, and everyday amenities. Its central location ensures effortless connectivity to every part of the city, while offering the convenience and vibrancy of modern urban living.
The development consists of three beautifully designed two-bedroom apartments, with one apartment on each floor, offering an ideal sense of exclusivity and comfort. Each residence has been thoughtfully planned to maximize functionality, natural light, and contemporary aesthetics, creating homes that are both stylish and practical.
One of the project’s most distinctive qualities is its private and low-density character. With only three apartments in total, Elite Residence offers residents a more peaceful and refined living environment, with an added sense of privacy and exclusivity. Spacious interiors and carefully considered layouts make each apartment perfectly suited to modern lifestyles.
For those seeking an elevated sense of luxury, the third-floor apartment enjoys its own private roof garden and swimming pool, creating a unique retreat in the center of the city. This exceptional outdoor space provides the perfect setting for relaxation, entertaining, and enjoying the Mediterranean lifestyle in complete privacy.
Whether as a permanent residence or a high-potential investment opportunity, Elite Residence combines location, exclusivity, and modern comfort in one outstanding development. Elite Residence is where boutique living meets the energy of the city center.



























